Come and Relax in our Quiet over 55 Community
         Located in the resort town of Wells, Maine.



Phone 207-646-4015
Sun "N" Sea Village
Home
44 Anna Robert Circle
52 Anna Robert Circle
64-Anna Robert Circle
68 Anna Robert Circle
132 Anna Robert Circle

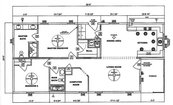
This beautiful, new, 2026  24'x52' double wide manufactured home is loaded with up-grades and features.
8X12 front porch.
Computer room or Den.
2 Bedroom 2 Full bath.
Kitchen is loaded with elegant Ozark Gray cabinets with glass doors.
Soft close doors and drawers with bottom shelf pull-outs.
Stainless appliances, gas stove, and a farmer sink with garbage disposal rounds out this fabulous kitchen. 
Dry Wall throughout.
Spacious living room and bedrooms with walk in closet. 
Full guest bathroom.
2 Panel Santa Fe doors throughout.
30 year Architectural Fiberglass shingles
Many other options and up-grades complement this gorgeous home.
Washer and Dryer. 
Propane tanks set and appliances converted.

Composite deck with vinyl railings.
Central A/C
Vinyl, Up-graded garden shed, 8'x12' (standard 6'x12')
New driveway

Optional deck or 4 season room available.
request a quote if interested 

FINANCING AVAIABLE





COMING JUNE OF 2026
Beautiful 24'x52' Manufactured home
8'x12' Front Porch
Ozark Grey Cabinet filled kitchen
Contact us for pricing and info